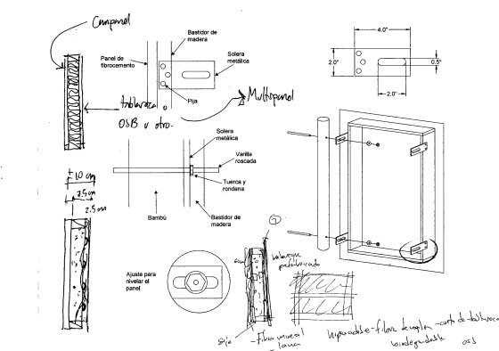
El módulo WASH para TECHO México es un elemento de vivienda emergente para zonas de irregularidad territorial, restauración por desastres … Más
Autor: ecruzv
BAMBOO BOARDS // Transformando el bambú mexicano
Este proyecto surge del proceso de articulación de la cadena de valor del bambú que se ha realizado desde hace … Más
MAPA DE RUTA DE LA INDUSTRIA DE BAMBÚ // Diseño y sistematización de la cadena de valor
Durante las última década, hemos visto alrededor del mundo un amplio surgimiento de la valoración de los bienes y servicios … Más
HUEYTAGREEN // Cooperativa de productores de bambú
Hueytagreen es una cooperativa de productores de bambú ubicada en Hueytamalco, Puebla cuyo objetivo es: Producir bambú que cumpla con … Más
APROPIACIÓN DEL ESPACIO PÚBLICO // Intervenir la ciudad sin infraestructura
El proyecto de Apropiación de Espacio Público se realizó para IMPLAN (Instituto Municipal de Planeación Urbana) para mejorar la convivencia … Más
REVALORACIÓN DEL PRODUCTO ARTESANAL // Bienal Iberoamericana del diseño 2018
Introducción La aplicación de los métodos de diseño de producto, puede posibilitar la escalabilidad de la oferta de los productos … Más
SECTOR 11 // Creando conocimiento a través del diseño
«Ayudamos a innovar y reducir la incertidumbre a las organizaciones, instituciones y empresas por medio del desarrollo de escenarios estratégicos, … Más
INTERVENCIÓN Y APROPIACIÓN // Diseño participativo de espacio temporal
SAN JUAN PILCAYA 18.23 norte, 98.70 oeste El sismo del 19S 2017 sacudió a México con una magnitud de 7.1 a … Más
EMPRENDE CUETZALAN // Emprendimiento comunitario
Emprende Cuetzalan fue un taller colaborativo realizado en la Sierra Nororiental de Puebla. Esta zona se caracteriza por ser una … Más
ESPACIO TEMPORAL HABITABLE // Albergue de mediano plazo para desastres naturales
El proyecto de Espacio Temporal Habitable es una respuesta al sismo del 19 de Septiembre, en donde las comunidades de … Más
ETNICKO // Programa para el desarrollo de la productividad y competitividad del sector artesanal en el estado de Querétaro
El proyecto Etniko fue parte de la búsqueda de la artesanía distintiva en Querétaro por parte del gobierno del estado. … Más
PROCESOS DE VENTA PARA ARTESANOS // Diseño neoartesanal
En el marco del proyecto realizado por Etniko dentro del Programa para el Desarrollo de la Productividad y Competitividad del … Más
PROCESOS DE INNOVACIÓN PARA ARTESANOS // Diseño neoartesanal
Durante el desarrollo del proyecto Etniko en el Estado de Querétaro, se trabajo con los artesanos de diferentes familias que … Más
GRUPO PUEBLA BAMBÚ // Cluster de producción y comercialización de bambú
Iniciativa de organizaciones civiles, empresas, productores y universidades Grupo Puebla Bambú surge del interés de diferentes actores, personas e instituciones … Más
PARIAN.MX // Rituales y productos cotidianos
Parian.mx es un proyecto dedicado a la investigación, desarrollo y comercialización de los productos cotidianos. Está enfocada en la curaduría … Más
INDUSTRIA DE BAMBÚ // Diseño de estrategias como detonadores locales
La industria de bambú en México tiene potencial competitivo a nivel internacional, pues es parte de una franja climática natural … Más
TLAOLMAKANI // Sistema de fermentación comunitario
El proyecto Tlaolmakani está enfocado a solucionar el desgaste microsistémico en la producción de alimento de las comunidades agrícolas de … Más
CATALIZADORA // Habilidades para profesionistas creativos
Catalizadora es un proyecto creado para desarrollar habilidades a los profesionistas creativos y ayudarles a emprender o administrar mejor sus … Más
Relación entre el diseño, la estrategia y la innovación
El diseño como profesión ha evolucionado de forma sorprendente en los últimos 20 años, actualmente se ha convertido en uno … Más
CAZUELA // Plataforma de diseño en Puebla
Cazuela es una plataforma digital de vinculación creativa dirigida a los diseñadores, arquitectos y artistas, donde se reúne la información … Más
Oferta y demanda del diseño
Mucho se ha discutido sobre cómo y cuánto cobrar por el trabajo de diseñador, pues todos quieren vivir de su … Más
MOVILIDAD // Estudio participativo sobre movilidad urbana sustentable
La movilidad es una acción derivada de las necesidades y deseos sociales, pero también es consecuencia de la localización en … Más
MADE IN GREEN // Certificación de la industria textil
Por muchos años la industria textil poblana ha tenido una visión conservadora de la innovación y la comercialización de sus … Más
LA RETA // Desafíos creativos
La Reta es un desafío anual que se realiza cada verano con el objetivo de encontrar, a través del diseño … Más
COORDENADA 21 // Asociación de diseñadores en Puebla
Coordenada 21 fue una Asociación Civil sin fines de lucro compuesta por diseñadores y apasionados del diseño, fue fundada en … Más
CULTIVOS DE TRASPATIO // Agricultura sostenible
En este proyecto se trabajó con diferentes instancias de gobierno municipal y asociaciones civiles para analizar la situación y realizar … Más
VILLA ATL // Estrategias para un bosque urbano
Ubicado a las afueras de la zona urbana de Villa Atl es un parque que tiene un área verde de … Más
BARRIOS ARTESANALES // Transmitir la vocación artesanal en los barrios tradicionales
Vocación barrio es un proyecto, que busca desarrollar talleres de oficios artesanales invitando al público. Existen talleres de carpintería, barro, … Más
PUEBLO NUEVO // Identidad y tejido social urbano
Escondido en el sur de la ciudad de Puebla se encuentra Romero Vargas, antes “Pueblo Nuevo”, una comunidad llena de … Más
PLATAFORMA LOCAL // Productos de diseño en México
Dentro de las comunidades creativas las personas interactúan por medio de contactos y amistades. Cada persona tiene una especialidad que … Más
Fachada /Terrazas
El proyecto de fachada en las Terrazas planteaba fabricar e instalar un sistema de cubiertas y paredes con el aspecto … Más
CAVA /Camino Real
Cava fabricada para el Camino Real (Monterrey), de vidrio y acero inoxidable. Cuenta con más de 360 vidrios diferentes y … Más
Techos /Terrazas
Por especificaciones arquitectonicas se buscaba crear ocho superficies curvas (cóncavas y convexas) de acero inoxidable con un volumen suficiente para … Más
VENTANAS /Camino Real
kinetica.com.mx
Debe estar conectado para enviar un comentario.